AEM Immobilier Agence
Télécharger la fiche
Exclusivité Coup de coeur

Maison 4 pièce(s) 3 chambre(s) 133 m²

Sérignan (34410)
465 000 € Référence O10000199

A propos de ce bien

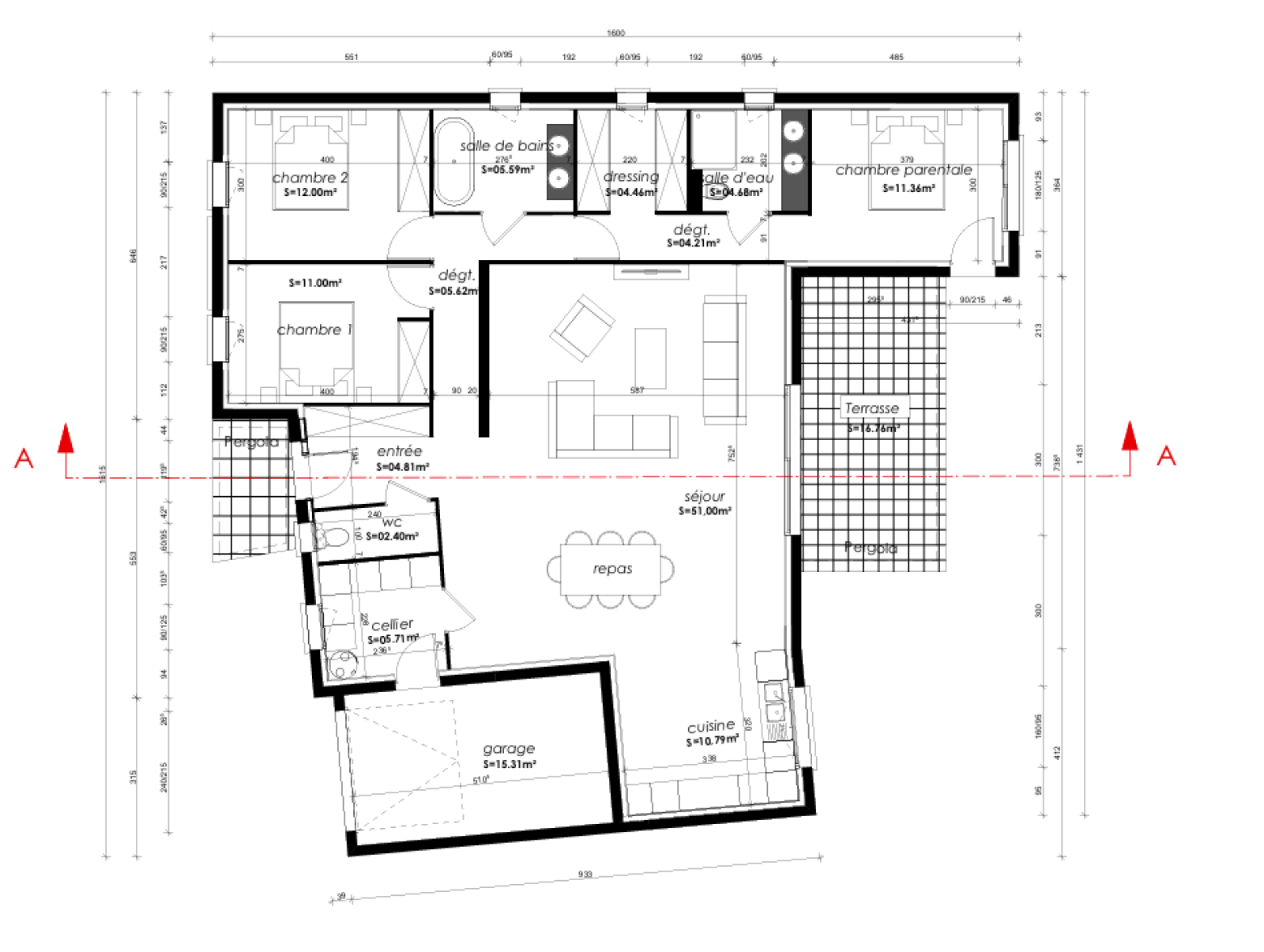
Villa – 133 m² – 3 chambres – Sérignan – Frais de notaire réduits

À Sérignan, à moins d’un kilomètre de la plage, découvrez cette villa de plain-pied de 133 m², édifiée sur une parcelle de 403 m² prête à être paysagée.

L’agencement privilégie confort et modernité. Une entrée avec placard et WC indépendant mène à une spacieuse pièce de vie baignée de lumière, ouverte sur une terrasse et un jardin intimiste.
L’espace nuit comprend une suite parentale avec dressing, salle d’eau et WC, deux chambres avec placards intégrés ainsi qu’une salle de bain supplémentaire.

Un garage et une buanderie complètent l’ensemble.

Prestations soignées : climatisation gainable, menuiseries aluminium double vitrage, volets roulants électriques, chauffe-eau thermodynamique.

Villa conforme RT 2012 et couverte par la garantie dommage-ouvrage.

Avantage exclusif : frais de notaire réduits. Sur le prix affiché de 465 000 €, cela représente une économie d’environ 23 000 € par rapport à l’ancien.

Environnement calme et recherché, maison disponible immédiatement.

* propositions d'aménagement

Honoraires à la charge du vendeur.
Visite vidéo disponible.
Informations sur les risques : www.georisques.gouv.fr


Les informations sur les risques auxquels ce bien est exposé sont disponibles sur le site Géorisques

Caractéristiques de ce bien

  • Surface 133 m²
  • séjour 62 m²
  • 3 chambre(s)
  • 1 salle(s) de bain
  • 1 salle(s) d'eau
  • construit en 2025
  • cuisine
  • Chauffage individuel : air pulsé (electrique)
  • 1 garage(s)
  • 2 parking(s)
  • exposition Sud
  • 1 côté(s) mitoyen(s)
  • 1 niveau(x)
  • terrasse
  • piscinable
  • accès handicapé

Diagnostics énergétiques

Consommation énergétique
A B C D E F G
Emission de gaz à effet de serre
A B C D E F G

Montant estimé des dépenses annuelles d'énergie pour un usage standard est compris entre 460 € et 650 € . Prix moyens des énergies indexés sur les années 2021, 2022 et 2023 (abonnements compris).

Informations financières

Prix de vente 465 000 € Les honoraires d'agence seront intégralement à la charge du vendeur

Calcul des mensualités

* Champs obligatoires